Passionned Group zet AI in bij enorme uitdaging
Woonin, een woningcorporatie die zich inzet voor betaalbare huisvesting voor de meest kwetsbaren in de samenleving, stond recentelijk voor een enorme uitdaging. De invoering van een nieuwe huurwet in juli betekende dat de huurprijzen van hun woningen voortaan gebaseerd moesten worden op exacte vierkante meters van buitenruimtes zoals balkons en dakterrassen. Dit was een drastische wijziging ten opzichte van het oude puntensysteem, dat werkte met ruwe categorieën op basis van oppervlakte. De nieuwe regeling, waarbij elke vierkante meter buitenruimte ongeveer twee euro extra huur per maand oplevert, vereiste een snelle en uiterst nauwkeurige inventarisatie van 35.000 woningen. Met een korte doorlooptijd en complexe plattegronden die vaak verouderd of inconsistent waren, riep Woonin de hulp in van Passionned Group en hun ervaren data scientist, Longhow Lam. Het resultaat? Een innovatieve AI-oplossing die niet alleen tijd bespaarde, maar ook Woonin inspireerde om datagedreven werken verder te omarmen.
Probleemstelling: van complexe plattegronden naar exacte data
De wetwijziging stelde Woonin voor een flinke uitdaging. “We wisten niet precies welke woningen balkons hadden en al helemaal niet hoe groot die waren,” zegt Mark Rossen, IT-adviseur bij Woonin. “Het handmatig nalopen van 35.000 woningen was simpelweg geen optie.” Plattegronden bevatten bovendien vaak onvolledige of verwarrende informatie. Termen zoals “balkon,” “dakterras” en “loggia” werden niet consistent gebruikt, en afmetingen ontbraken soms geheel.
We hebben nu een datakwaliteit die betrouwbaar genoeg is om de nieuwe huurwet correct toe te passen.
De tijdsdruk was enorm. “De wet werd pas vier dagen voor invoering bekendgemaakt, dus we hadden geen tijd te verliezen,” voegt Mark toe. “Dit was niet alleen een technische uitdaging, maar ook een morele verantwoordelijkheid. Woonin maakt geen winst, en we willen er zeker van zijn dat huurders niet onterecht te veel betalen.”
Aanpak en proces: innovatief en flexibel
Passionned Group kwam met een baanbrekende aanpak om de balkonsystematiek te automatiseren. Samen met Longhow Lam werd een proces in vier stappen ontwikkeld:
- PDF naar beeld: plattegronden werden met Python omgezet van PDF naar beelden (PNG-bestanden), zodat ze geschikt waren voor verdere analyse.
- Tekstherkenning met OCR (Optical character recognition): met behulp van Tesseract OCR werden woorden zoals “balkon” of “loggia” geïdentificeerd.
- Pixelanalyse met het computer vision package OpenCV: deze analyse werd ingezet om contouren van balkons te herkennen en de bijbehorende pixels te tellen. Deze pixeldata werd vervolgens omgerekend naar vierkante meters door vergelijking met een referentieruimte, zoals de slaapkamer.
- Cloudcomputing voor snelheid: een virtual machine in de Google Cloud-omgeving met 60 cores en 240 GB RAM werd tijdelijk opgespind. Dit versnelde het proces aanzienlijk: “Wat normaal 30 uur zou duren om alle plattegronden te verwerken, konden we nu in een uur doen door de kracht van parallel computing,” zegt Longhow.
Mark was onder de indruk van de flexibiliteit van Passionned Group: “Toen we merkten dat de keuken als referentieruimte niet werkte vanwege verwarrende lijnen voor aanrechten en dergelijke, stelde hij Passionned meteen voor om de slaapkamer te gebruiken. Dat soort snelle aanpassingen maakte een wereld van verschil.”
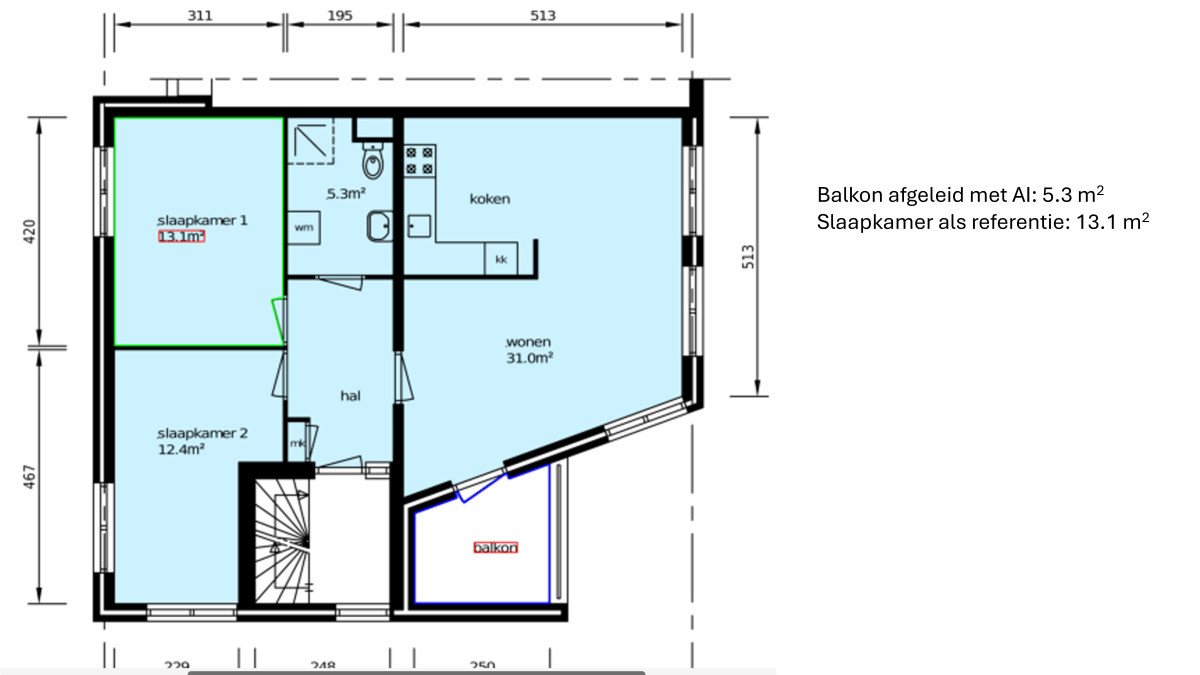
Figuur 1: Deze afbeelding toont hoe AI een balkonoppervlakte van 5,3m² heeft berekend, met een slaapkamer van 13,1m² als referentieruimte voor nauwkeurigheid.
De aanpak werd in drie iteraties verfijnd. Eerst werd een pilot uitgevoerd op 500 woningen, waarna feedback werd verwerkt om de nauwkeurigheid verder te verhogen. Uiteindelijk werd de volledige dataset van 35.000 woningen geanalyseerd.
Resultaten: tijdsbesparing en betrouwbaarheid
De samenwerking met Passionned heeft Woonin enorme voordelen opgeleverd. “Deze oplossing heeft ons letterlijk weken aan werk bespaard,” zegt Mark. We hebben nu een datakwaliteit die betrouwbaar genoeg is om de nieuwe huurwet correct toe te passen. Hoewel een klein percentage plattegronden vanwege slechte kwaliteit niet volledig verwerkt kon worden, bood het combineren van de resultaten van Artificial Intelligence en een eigen dataset van Woonin een robuuste oplossing. Waar nodig werden handmatige controles uitgevoerd, maar dit betrof slechts een relatief klein percentage van de totale woningen. Longhow benadrukt: “Met rechttoe-rechtaan data science, zonder de generatieve AI-hype, hebben we dit probleem effectief opgelost.”
Daarnaast was Woonin verrast door de snelheid van de cloudomgeving. “Ik wist niet dat je capaciteit zo snel kon opschalen,” zegt Mark. “Het openen van die wereld heeft me echt geïnspireerd.”
Samenvattend: een succesverhaal met toekomstperspectief
Woonin kijkt terug op een fijne samenwerking met Passionned Group. “De snelheid en precisie van hun aanpak hebben onze verwachtingen overtroffen,” aldus Mark. De woningcorporatie is nu geïnspireerd om meer kennis op te doen over data-analyse en techniek. “We willen leren hoe we deze technieken breder kunnen toepassen, bijvoorbeeld om door onze database van miljoenen documenten te navigeren,” besluit Mark.
Longhow vat het project treffend samen: “Met de juiste tools en een praktische aanpak kun je complexe problemen oplossen. Data science draait niet om de hype, maar om wat werkt.”
Mede dankzij de innovatieve oplossing van Passionned Group is Woonin nu klaar met de datakwaliteit voor huurprijsberekeningen. Dit project laat zien hoe technologie en menselijke expertise samen een positieve impact kunnen hebben.


